Comercializa                       

4244-0133 / +54-9 11-5505-6116 [email protected]

Edificio Lomas de Zamora. - Sarmiento 125

Renders del Emprendimiento:

Edificio Lomas de Zamora. - Sarmiento 125

Especificaciones técnicas

De los departamentos:

  • Estructura independiente compuesta por bases, columnas, vigas, tabiques y losas de hormigón armado.
  • Mampostería exterior de ladrillo hueco cerámico de 0.18m.
  • Mampostería interior de ladrillo hueco de 0.12m y 0.08m según corresponda.
  • Contrapisos de hormigón.
  • Revoque exterior completo tricapa proyectable.
  • Revoques interiores en departamentos realizados con yeso, con cantoneras metálicas en ángulos vivos.
  • Cielorrasos aplicados en yeso para estar-comedor, con buñas en sus encuentros con muros.
  • Cielorrasos aplicados en yeso para dormitorios.
  • Cielorrasos armados en yeso para baños y cocinas.
  • Aberturas exteriores a medida de aluminio línea MODENA o similar con doble vidriado hermético, según corresponda.
  • Barandas de balcón metálicas, según diseño.
  • Frentes de placard corredizos de aluminio anodizado natural y placas de melamina. Interiores con cajonera, estantes y barrales para colgar.
  • Puertas de acceso a departamentos con marco de chapa doblada y hojas de doble chapa.
  • Puertas placa interiores de departamentos con marco de chapa doblada.
  • Pisos de porcelanato en hall y espacios de uso común.
  • Pisos de porcelanato en estar y cocina comedor diario.
  • Pisos de porcelanato en dormitorios.
  • Pisos y revestimientos de porcelanato en baños y cocinas.
  • Instalación de distribución de agua fría y caliente ejecutada con polipropileno con uniones por termofusión, con calderas individuales (para agua caliente y calefacción).
  • Sistema de calefacción por agua caliente con calderas individuales (para agua caliente y calefacción) y distribución mediante piso radiante.
  • Instalación de desagües cloacales y pluviales ejecutadas con cañerías de polipropileno con unión elastomérica.
  • Instalación de gas con cañería con recubrimiento epoxi.
  • Pre-instalación de equipos split en dormitorios y estar-comedor (no incluye equipos).
  • Instalación eléctrica y de baja tensión acorde a las normas exigidas por el ENRE, con dotación de toma de telefonía (cañería vacía), televisión (cañería vacía) y usos especiales. 
  • Provisión e instalación de portero eléctrico.
  • Pintura integral: Paredes interiores con látex, exteriores con acrílico impermeable, carpintería metálica y herrería con esmalte sintético.
  • Monocomando FV, Peirano, Piazza, Hidromet o similar y pileta de acero inoxidable en cocina.
  • Vanitorys de melamina en baños con bacha Ferrum, Roca, Peirano, Piazza o similar.
  • Amoblamientos de cocina con alacena y bajo mesada de melamina, con mesada de Purastone o similar.
  • Provisión de campana TST o similar de acero inoxidable.
  • Horno y anafe a gas Longvie o similar.
  • Artefactos sanitarios Ferrum, Roca, Peirano, Piazza o similar.
  • Griferías FV, Peirano, Piazza, Hidromet de cierre cerámico o similar.
  • Bañeras Roca o similar.
  • Parrillas individuales a gas.

Exclusiones:

  • Artefactos de iluminación de departamentos.
  • Cableado de TV y TE.
  • Accesorios de baños y espejo.
  • Provisión y colocación de equipos Split.

Generales del edificio:

  • Hall de acceso con frente de cristal templado o laminado, con iluminación por spots. Pared de hall con revestimiento a definir.
  • Solarium con sector parrilla
  • Provisión de ascensor con comando electrónico de velocidad variable, con puertas automáticas de acero inoxidable en planta baja y metálicas en todos los pisos.
  • Artefactos de iluminación en partes comunes.
  • Portón y rampa de acceso vehicular automatizado.
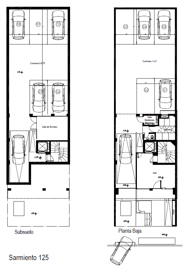
  • Cocheras cubiertas en subsuelo y semicubiertas en planta baja.
  • Previsión de grupo electrógeno.
  • Instalación contra incendio.

Ubicación:

Planta baja:

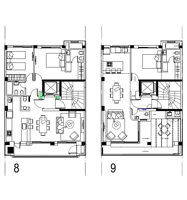
Piso 8 y 9:

Subsuelo y planta baja: